NOVÉ
Bungalov O(4+kk)
I přízemní dům může mít obytný prostor otevřený do krovu! Bungalov O jsme pojali moderně a netradičně. Spojili jsme výhody mezonetového a jednopodlažního domu: Bungalovy se obecně dobře udržují a jsou energeticky úsporné, zatímco volný prostor nad hlavou dodá interiéru speciální atmosféru jako na zámku. O záplavu světla se postará nejen široký posuvný portál, ale také kulaté průzorové okénko ve štítu. A pod střechou přitom zbyde dostatek úložného prostoru i pro čtyřčlennou rodinu.
Ke stažení: KATALOG STAVBY Bungalov O
PLOCHA
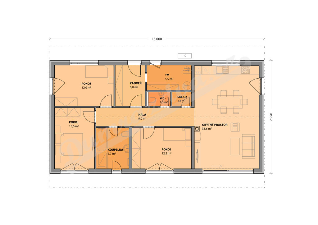
| zastavěná plocha | 118,8 m2 |
| užitná plocha | 101,3 m2 |
| obytná plocha | 71,2 m2 |
DISPOZICE DOMU
Dispozice domu: Zádveří, obývací pokoj spojený s kuchyní, 3 x pokoj, koupelna s WC, samostatné WC, technickou místnost a sklad.
Stavební systém: nízkoenergetická sendvičová dřevostavba
PROJEKT K DOMU ZDARMA
Vypracujeme projekt pro povolení stavby a pomůžeme vám se stavebním řízením.
| hrubá stavba | 2 465 500 Kč |
| stavba k dokončení | 3 989 600 Kč |
| stavba na klíč | 4 750 900 Kč |
Uvedené ceny jsou bez DPH. Nezahrnují základovou desku ani hydroizolaci a platí pro standardní provedení dřevostavby.
DOPRAVA DO 50 KM ZDARMA.KLIENTSKÉ ÚPRAVY
Přejete si jen trochu jinou střechu, okna nebo fasádu? Nabízíme i další varianty, pro které vám po dohodě vypracujeme přesnou individuální kalkulaci. Rádi přizpůsobíme náš projekt vašim představám nebo požadavkům místních předpisů. K domu přistavíme pergolu, garážové stání nebo terasu.
KONTAKTUJTE NÁS
Zaujala vás tato dřevostavba?
Napište nám nezávaznou poptávku - rádi zodpovíme vaše dotazy.